г Санкт-Петербург, Московское шоссе, д 42 к 2
Пн-пт с 10:00 до 21:00, Сб-вс с 11:00 до 18:00
+7(921)977-7893
Заказать звонок
Меню
Продажа
Квартиры
Все
Студия
1-к.квартира
2-к.квартира
3-к.квартира
4-к.квартира
5-к.квартира
Коммерческая недвижимость
Все
Гостиница
Офисное помещение
Помещение свободного назначения
Производственное помещение
Складское помещение
Торговое помещение
Здание
Коммерческая земля
Земельные участки
Все
Ижс
Садоводство
Промназначения
Дома, дачи, коттеджи
Все
Блочный
Деревянный
Кирпичный
Кирпично-монолитный
Монолит
Комнаты
Аренда
Квартиры
Все
1-к.квартира
Земельные участки
Все
Промназначения
Дома, дачи, коттеджи
Все
Кирпичный
Комнаты
Контакты
О компании
Ипотека
Ипотечный калькулятор
Сотрудники
Вакансии
Отзывы
196 объектов
Заказать звонок
+7(921)977-7893
Большая Недвижимость
Аренда коммерческая недвижимость
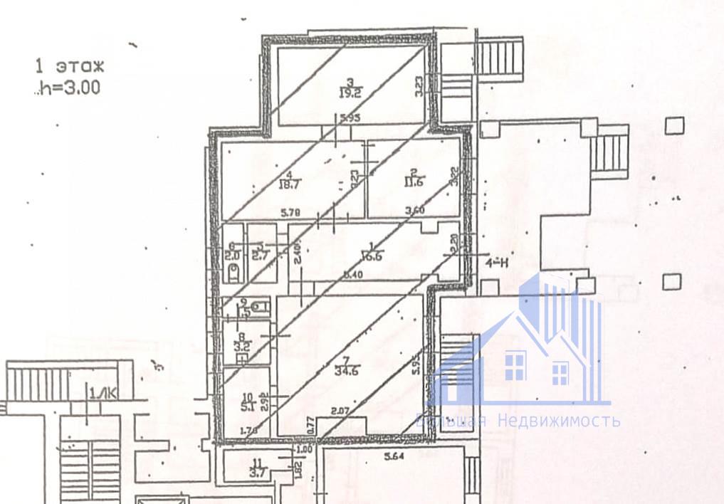
Аренда Торговое помещение 115 м²
ID: J391
Санкт-Петербург
,
Выборгский
, проспект Тореза, д.43, к.А
Площадь
115 м²
Этаж
1 из 18
95 000
/ месяц
826
/м²
Записаться на просмотр
Гончар Елена
Специалист по недвижимости
+7(931)638-2366
Показать телефон
bigestate.gonchar@gmail.com
Ссылка на объект
Описание
БЕЗ КОМИССИИ!
Сдается помещение 115,2 кв.м. по адресу ул. Тореза д. 43
Возможное использование: офис, студия, мастерская, магазин, салон красоты.
Вход со двора
Электричество 49 кВт.
Высота потолков 3 м
Коммунальные услуги оплачиваются дополнительно
Звоните в любой день с 10 до 21. Организую просмотр в удобное для Вас время.
Характеристики
Тип недвижимости
Коммерческая
Населенный пункт
Санкт-Петербург
Район
Выборгский
Адрес
проспект Тореза, д.43, к.А
Стоимость за
Месяц
Общая площадь
115 м²
Вид объекта
Торговое помещение
Этаж
1
Этажность дома
18
Планировка
Открытая
Мощность электричества
49 кВт
Парковка
есть
Отделка
Чистовая
Вид объекта дополнительно
Офис, Свободного назначения
Тип аренды для ЦИАН
Прямая аренда
Вид аренды для ЯН
прямая аренда
Задать вопрос
Я согласен на обработку персональных данных
Отправить
Карта
Вас также может заинтересовать:
14
Помещение свободного назначения 122 м²
Санкт-Петербург
, проспект Средний В.О., д.56
Василеостровский
Василеостровская
90 000
/ месяц
Вид объекта:
Помещение свободного назначения
Этаж:
-1
Этажность дома:
6
3
Помещение свободного назначения 155.5 м²
Санкт-Петербург
, улица Бобруйская, д.7
Калининский
Площадь Ленина
116 625
/ месяц
Вид объекта:
Помещение свободного назначения
Этаж:
3
Этажность дома:
3
10
Помещение свободного назначения 130 м²
Санкт-Петербург
, улица Софийская, д.66, к.А
Фрунзенский
117 000
/ месяц
Вид объекта:
Помещение свободного назначения
Этаж:
3
Этажность дома:
3
Позвоните нам, мы решим ваши проблемы!
Свяжитесь с нами
...
Мы используем файлы cookie, чтобы обеспечить вам наилучший доступ к нашему веб-сайту
Принять
Заказать звонок
Ваше имя
Телефон
Email
Вопрос
Способ связи
Я согласен на обработку персональных данных
Соглашение об обработке персональных данных
Политика обработки персональных данных
Поделиться
Скопировано