г Санкт-Петербург, Московское шоссе, д 42 к 2
Пн-пт с 10:00 до 21:00, Сб-вс с 11:00 до 18:00

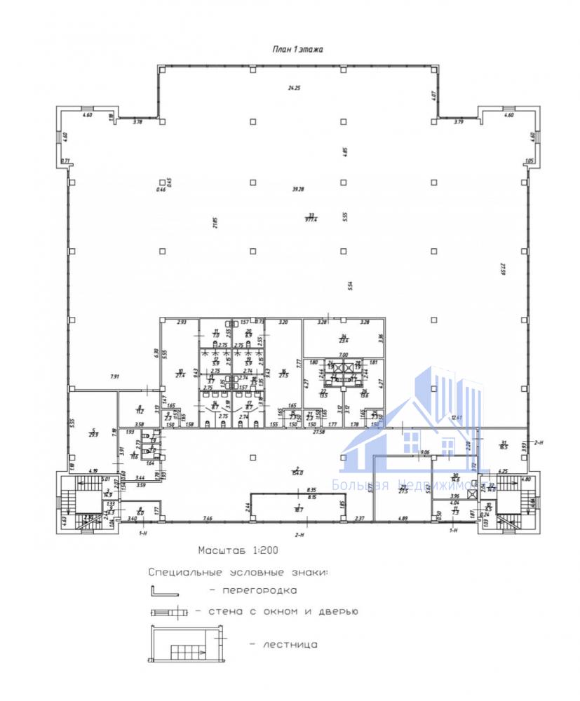
Собственник. 1448 кв м. аренда ID: J396

Санкт-Петербург, Выборгский, шоссе Выборгское, д.12, к.А Озерки Московско-Петроградская 13711 мин.
3 620 000 / месяц
2 500 /м²
QR
Ссылка на объект

Описание

Напрямую от собственника !



Шикарное предложение для Вашего успешного бизнеса рядом с метро Озерки! Рядом озеро и пляж



Сдается 1й этаж 1448 кв.м имущественного комплекса: в новом здании 6026 кв м. на земельном участке 3487 кв. м.



ХАРАКТЕРИСТИКИ



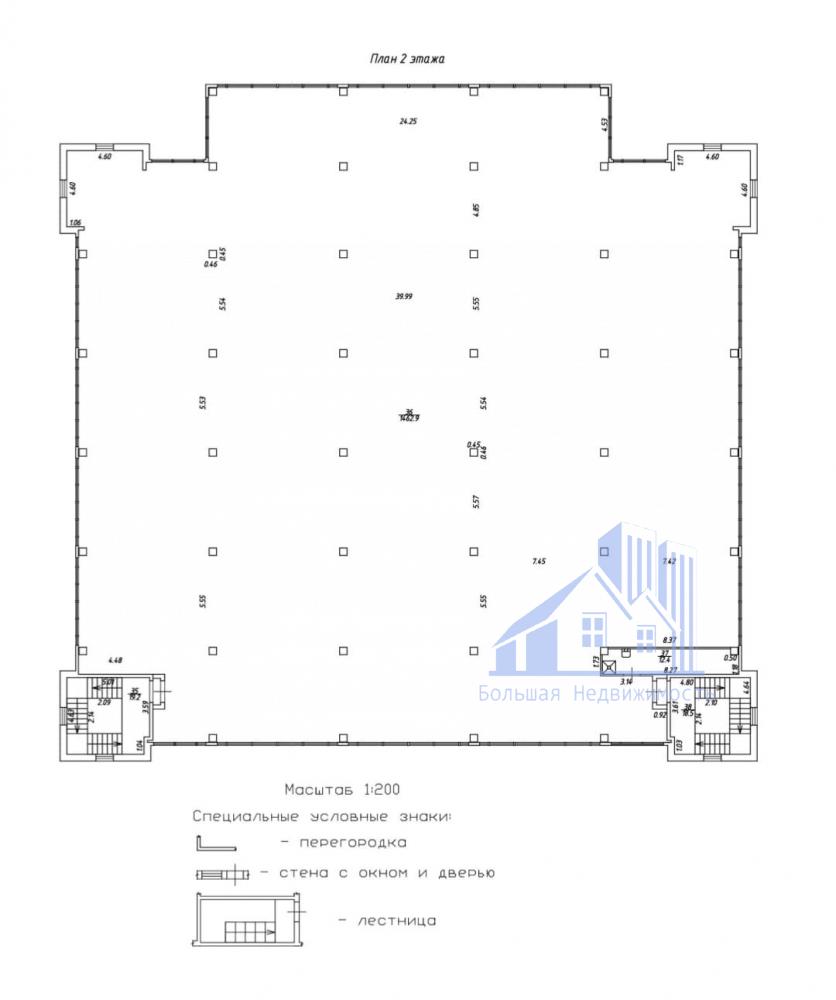
  • Общая площадь 2940 кв. м

  • 1-й этаж - 1 448 кв м - 2500 р/ кв.м. с отделкой (возможно от 480 кв.м)


  • высота потолков – 3 м (паркинг 2,5 м)

  • шаг колонн - 6 х 8 м

  • Панорамное зеркальное остекление стеклопакетами по всему фасаду

  • Отделка фасадов плиткой.

  • Мягкая кровля

  • Открытая планировка

  • Все помещения видовые: на Суздальское озеро и на Выборгское шоссе.


ДОПОЛНИТЕЛЬНО:



  • 2-й этаж - 1 492 кв м. - 2500 р/ кв.м с отделкой

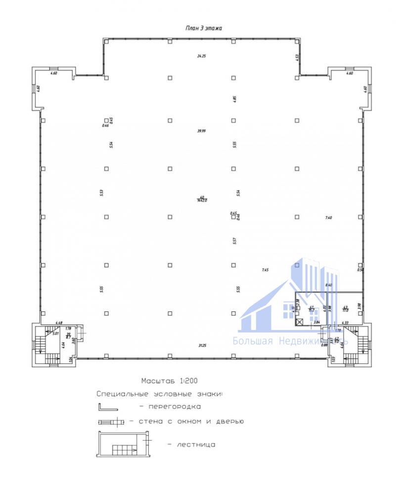
  • 3-й этаж - 1 156 кв м.

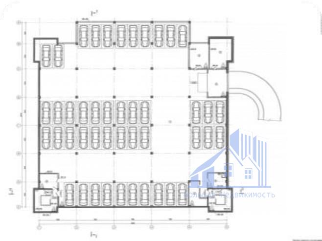
  • Цоколь - 1477 кв м., (паркинг на 45 машино-мест)



ЗЕМЕЛЬНЫЙ УЧАСТОК:



  • Общая площадь 3487 кв. м


КОММУНИКАЦИИ:



  • Собственная газовая котельная (три котла по 100 кВт, общая мощность 300 кВт);

  • Электрическая мощность 261,33 кВт, возможно увеличение;

  • Система пожарно-охранной сигнализации, тревожная кнопка;

  • Въезд/выезд на территорию оснащен парковочным оборудованием;

  • Доступ к интернет по кабельной сети провайдеров;

  • Установлена система видеонаблюдения

  • Центральные коммуникации: электроэнергия, водоснабжение, отопление.


РАСПОЛОЖЕНИЕ:



  • 150 м от ст.м. "Озерки". Остановки всех видов транспорта.

  • Магистрали: Выборгское шоссе (первая линия), пр. Энгельса, магистрали из Калининского и Приморского районов.

  • до КАД - 20 минут

  • до Парнаса - 20 минут

  • до ЗСД - 20 минут

  • до Петроградской стороны - 25 мин



Подойдет под открытие: Кафе, ресторана, кофейни с возможностью организации летней террасы, прямым доступом с улицы и высоким пешеходным трафиком, с летней трассой и видом на Суздальское озеро.



Звоните в любой день с 10 до 21. Предоставлю по запросу весь пакет документов, организую просмотр в удобное для Вас время.


Подробнее

Характеристики

  • Тип недвижимости Коммерческая
  • Населенный пункт Санкт-Петербург
  • Район Выборгский
  • Адрес шоссе Выборгское, д.12, к.А
  • Станция метро Озерки ( 13711 мин.)
  • Стоимость заМесяц
  • Общая площадь 1448 м²
  • Вид объекта Помещение свободного назначения
  • Этаж 1
  • Этажность дома 3
  • Планировка Открытая
  • Мощность электричества 261 кВт
  • Парковка есть
  • Отделка Без отделки
  • Вид объекта дополнительно Офис, Торговое помещение, Здание
  • Тип аренды для ЦИАН Прямая аренда
  • Вид аренды для ЯН прямая аренда
Задать вопрос


Вас также может заинтересовать:
10
Здание 2288.5 м²
Санкт-Петербург, улица Профессора Попова, д.38, к.Ж
Петроградский
Чкаловская
2 746 200 / месяц
  • Вид объекта:Здание
  • Этажность дома:2

Мы используем файлы cookie, чтобы обеспечить вам наилучший доступ к нашему веб-сайту

Скопировано