г Санкт-Петербург, Московское шоссе, д 42 к 2
Пн-пт с 10:00 до 21:00, Сб-вс с 11:00 до 18:00

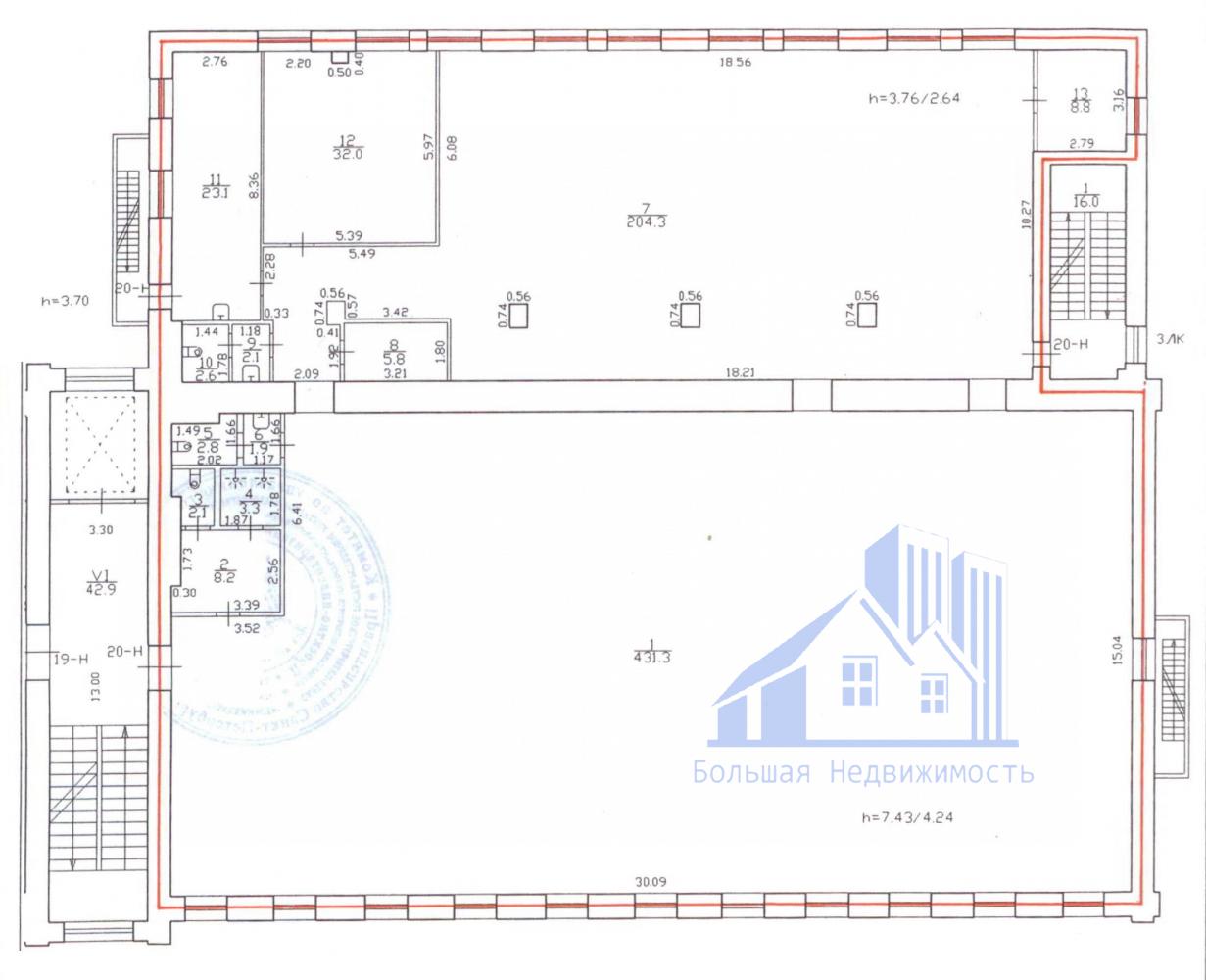
Производство, офис, склад 728 м2 ID: J395

Санкт-Петербург, Адмиралтейский, набережная Обводного канала, д.134-136-138 Балтийская Кировско-Выборгская 13671 мин.

Описание

Возможен торг по договоренности



Смотрите видео



Эксклюзивный Брокер объекта Компания "Большая недвижимость"



Пpодаeтcя производственное помещение 728 кв.м, метро Балтийская



ХАРАКТЕРИСТИКИ:



  • Общая площадь 728 кв.м

  • высота потолков в помещениях 2,70 - 3,00 - 3,70 - 3,76 - 7,43 - 2,64;

  • 2 санузла

  • 5й этаж

  • грузовой лифт до 3т

  • электричество 75 кВт, возможность увеличения до 500кВт

  • газовая котельная

  • Свободная парковка на территории 24/7

  • Въезд через КПП с наб.Обводного канала

  • Земельный участок в аренде в долях до 2058 года


Xорошеe pаcположение для бизнеcа


В настоящее время в аренде (швейное производство 6й год), договор 11 месяцев с продлением.


Возможна продажа без арендатора


Назначение - нежилое, производство.


Собственник - физическое лицо, УСН.


Годовые налоги:



  • Помещение 728 кв м - 10 000 рублей.

  • Доля земельного участка: 30 000 рублей.


Транспорт:



  • метро Бaлтийcка в шaгoвoй дoступнocти.

  • До цeнтра гoрода близкo,

  • тpанcпoртнaя рaзвязка.


Звоните в любой день с 10 до 21. Организую показ, пришлю документы.



Объект Культурного Наследия Регионального значения КГИОП, распоряжение номер 75 от 31.01.2023 года.


.

Подробнее

Характеристики

  • Тип недвижимости Коммерческая
  • Населенный пункт Санкт-Петербург
  • Район Адмиралтейский
  • Адрес набережная Обводного канала, д.134-136-138
  • Станция метро Балтийская ( 13671 мин.)
  • Общая площадь 728 м²
  • Вид объекта Производственное помещение
  • Этаж 5
  • Этажность дома 5
  • Планировка Открытая
  • Мощность электричества 75 кВт
  • Парковка есть
  • Отделка Офисная
  • Вид объекта дополнительно Свободного назначения, Склад
Задать вопрос


Вас также может заинтересовать:
21
Торговое помещение 207,2 кв. м
Санкт-Петербург, проспект Косыгина, д.30, к.1 литера Б

50 400 000
  • Вид объекта:Торговое помещение
  • Этаж:1
  • Этажность дома:1
40
Производственно-складской комплекс
Санкт-Петербург, дорога Нефтяная, д.3
Фрунзенский
75 000 000
  • Вид объекта:Производственное помещение
  • Этаж:1
  • Этажность дома:1
18
Здание теплый склад 1065,5 кв.м
Санкт-Петербург, г Санкт-Петербург, поселок Шушары, тер Московская Славянка, д 3 литера Б
Пушкинский
60 000 000
  • Вид объекта:Здание
  • Этажность дома:1

Мы используем файлы cookie, чтобы обеспечить вам наилучший доступ к нашему веб-сайту

Скопировано