г Санкт-Петербург, Московское шоссе, д 42 к 2
Пн-пт с 10:00 до 21:00, Сб-вс с 11:00 до 18:00

Элитный коттедж в КП Лазурное ID: J451

Тосно, Ленинградская обл., Тосненский р-н, Фёдоровское городское поселение, д. Ладога, коттеджный пос. Лазурное, Лазурная ул., 39
Комнаты 3
Площадь 173.8 м²
Этажи 1
Сдача 2021

Описание

Продается полностью обустроенный коттедж с прекрасным ремонтом в одном из лучших коттеджных поселков "Лазурное" в юго-восточном направлении.


Вся техника и мебель остаются в доме - заезжай и живи!


При покупке этого дома, вы получаете возможность жизни в пригороде со всеми преимуществами городского комфорта.


Здесь сможет разместиться большая дружная семья с детьми и животными.


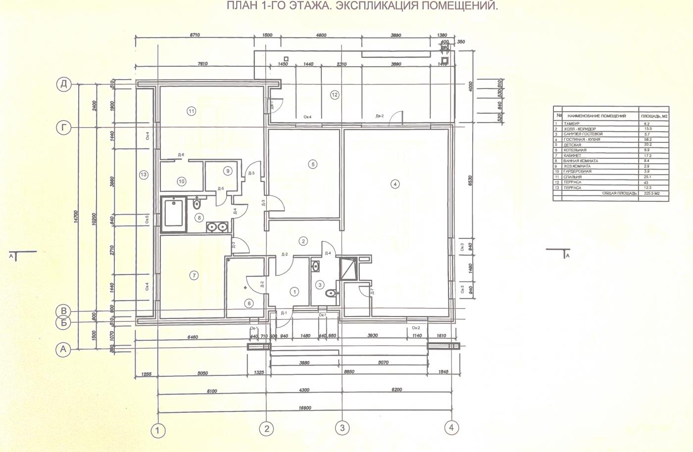
Общая площадь дома - 173,8 м2 + 2 открытые терассы.


В доме удобная планировка, все помещения расположены на одном этаже.



  • Кухня-гостиная 56 м2

  • 3 спальни - 25, 20, 17 м2

  • 2 санузла - 8,4 и 5,7 м2.

  • Потолки более 3 м.

  • Фундамент - плита

  • стены - керамзитобетонные блоки, оштукатуренные

  • крыша - металлическая, фальцевая.


Дом построен в 2017 году по индивидуальному проекту, очень светлый и теплый.


Во всех комнатах кондиционеры, заданная температура поддерживается автоматически.


Установлена химическая станция очистки воды.


В помещениях общего пользования пол из керамогранита с водяным подогревом, в комнатах паркет.


Коммуникации:



  • магистральный газ

  • водоснабжение из центральной скважины

  • канализация

  • электричество 15 кВт.

  • Отопление - газовый котел "Vаlliаnt" (Германия).


Участок 19 соток.


Выровнен, обустроен. На участке газон, дорожки, зона барбекю, детская площадка.


Построен гараж, организована парковка на 4 машины.


Удобная транспортная доступность. До города можно добираться по платной трассе М-11.



Звоните в любой день с 10 до 21.


Организую просмотр в удобное для Вас время. Возможен онлайн-показ. Быстрое комфортное оформление.



С уважением,


Максим Юрьевич Борцов,


эксперт по продаже жилой и коммерческой недвижимости.

Подробнее

Характеристики

  • Тип недвижимости Дома, дачи
  • Населенный пункт Тосно
  • Адрес Ленинградская обл., Тосненский р-н, Фёдоровское городское поселение, д. Ладога, коттеджный пос. Лазурное, Лазурная ул., 39
  • Тип объекта коттедж
  • Тип дома блочный
  • Общая площадь 173.8 м²
  • Площадь участка 19 сот.
  • Количество этажей 1
  • Подвальное помещение нет
  • Год постройки 2021
  • Материал стен Экспериментальные материалы
  • Тип участка ИЖС
  • Санузел в доме
  • Душ В доме
  • Удобства есть
  • Количество комнат 3
Задать вопрос

Мы используем файлы cookie, чтобы обеспечить вам наилучший доступ к нашему веб-сайту

Скопировано