г Санкт-Петербург, Московское шоссе, д 42 к 2
Пн-пт с 10:00 до 21:00, Сб-вс с 11:00 до 18:00

ГОСТИНИЦА НА ДВИНСКОЙ УЛИЦЕ ID: J172

Санкт-Петербург, Кировский, улица Виндавская, д.2, к.А Балтийская Кировско-Выборгская 13676 мин.
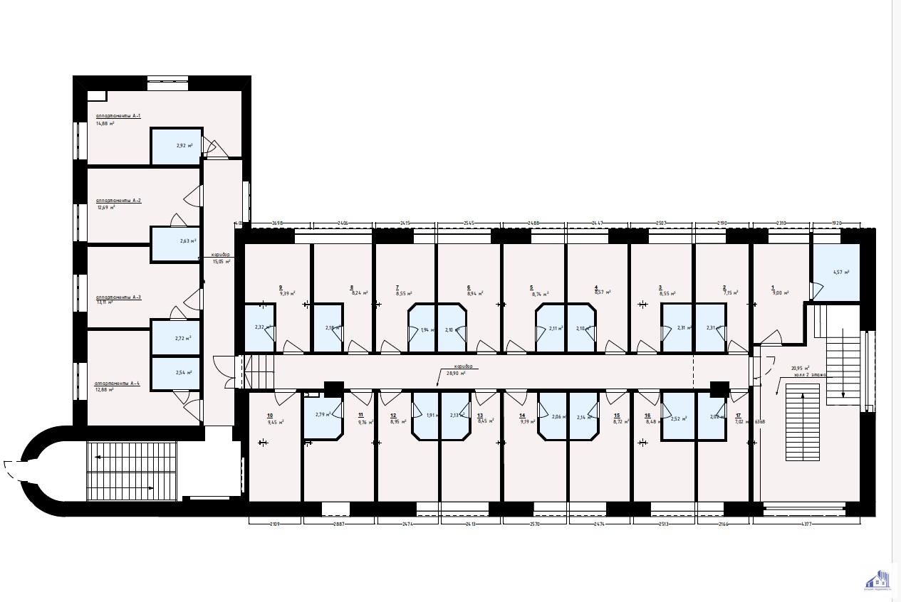
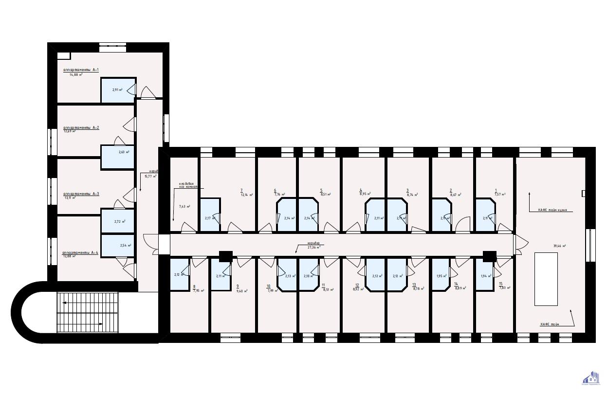
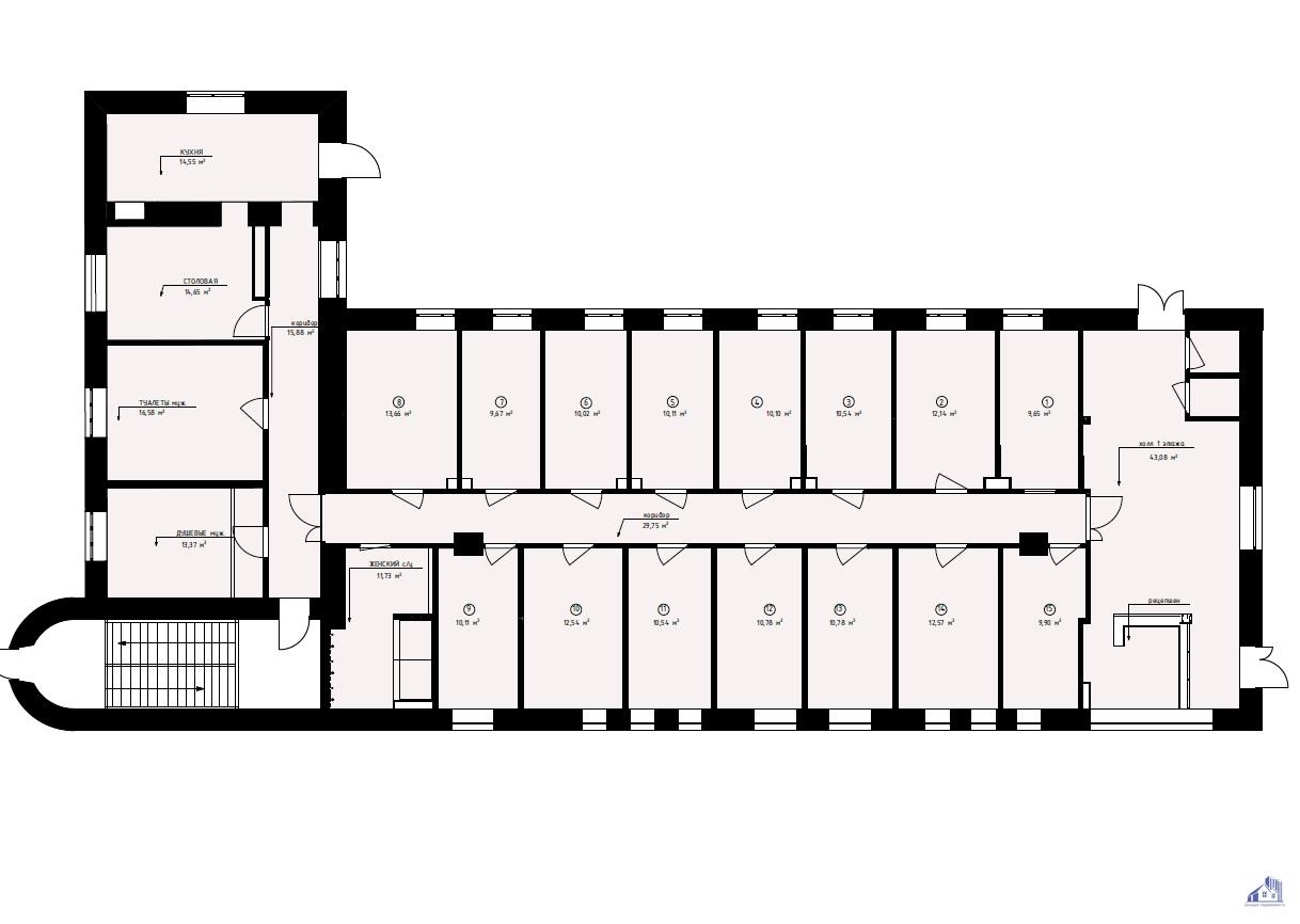
Площадь 1052 м²
Этаж 1 из 2
Окупаемость 12.2

Описание

Готовый бизнес. Высокая доходность.



Сдано в арнду на долгосрочной основе



Продается действующая гостиница (55 номеров) с новым ремонтом в отличном месте


Сейчас вопрос инвестиций в достойную коммерческую недвижимость стоит как никогда остро. Особое значение приобретает надежность вложений и стабильность дохода. Рассмотрите выгодное вложение в деловую недвижимость в удобной локации рядом с центром города.



ХАРАКТЕРИСТИКИ:


Общая площадь - 1052.5 кв.м.


Количество номеров – 55.


Всего 6 видов номеров:


апартаменты с кухней 3-х местный семейный номер


2-х местный номер


1-но местный номер


2-х местный номер. Удобства на этаже.


место в 4-х местном номере. Удобства на этаже.


Кол-во этажей – 3.



Полный ремонт здания завершен в августе 2022 года. В процессе ремонта были укреплены несущие конструкции здания, включая фундамент, балки и перекрытия. Заменена стропильная система и кровля. здание полностью утеплено и отштукатурено.


Вымощена площадка перед гостиницей. Заасфальтирована стоянка под автомобили рядом с гостиницей и во внутреннем дворе.


Облагорожена территория и установлены беседки во внутреннем дворе.



ОПИСАНИЕ:


На 1 этаже обустроена специальная кухня для кафе с вытяжкой.


В здании 4 отдельных входа. Полностью заменены системы электроснабжения, водоснабжения и канализации. Установлена системы вентиляции, дымоудаления, очистки воды (воду можно пить прямо из-под крана). Проведена пожарная сигнализация система видеонаблюдения.


Все номера оборудованы бесплатным интернетом и холодильниками. Вы всегда можете воспользоваться стиральной машиной в хозяйственной комнате, утюгом и феном.


Подведены все городские коммуникации - тепло, вода, водоотведение, электричество (55 кВт).


2,5 км от метро "Балтийская", 2 км от метро «Нарвская», вход с ул. Двинской.


Удобная логистика – 2 км до ЗСД, 11 км до развязки КАД – Дачный пр., 20 км до аэропорта Пулково (23 мин на а/м). По Генеральному плану развития Санкт- Петербурга в непосредственной близости от гостиницы планируется строительство станции метро «Двинская».


Такое удачное расположение позволяет использовать ее как для делового размещения, так и для туристического. (Санкт-Петербург признан туристической столицей России).


Собственность юридического лица. Возможна любая форма оплаты.


Звоните в любой день с 10 до 21. Предоставлю по запросу весь пакет документов, организую просмотр в удобное для Вас время.


Подробнее

Характеристики

Задать вопрос


Вас также может заинтересовать:
21
Помещение своб назначения 411 м²
Санкт-Петербург, проспект Косыгина, д.30, к.1 литера Б
Красногвардейский
Проспект Большевиков
84 000 000
  • Вид объекта:Помещение свободного назначения
  • Этаж:1
  • Этажность дома:1
21
Окупаемость 10 лет.
Санкт-Петербург, проспект Большевиков, д.40
Невский
Улица Дыбенко
100 000 000
  • Вид объекта:Помещение свободного назначения
  • Этаж:1
  • Этажность дома:2
11
Помещение свободного назначения 519 м²
Санкт-Петербург, набережная Воскресенская, д.4, к.А
Центральный
110 000 000
  • Вид объекта:Помещение свободного назначения
  • Этаж:1
  • Этажность дома:10

Мы используем файлы cookie, чтобы обеспечить вам наилучший доступ к нашему веб-сайту

Скопировано