г Санкт-Петербург, Московское шоссе, д 42 к 2
Пн-пт с 10:00 до 21:00, Сб-вс с 11:00 до 18:00

Имущественный комплекс ID: J75

Санкт-Петербург, Кировский, улица Корабельная, д.6, к.ЖХ Кировский завод Кировско-Выборгская 13677 мин.
Площадь 2442.3 м²
Этажи 4
QR
Ссылка на объект

Описание

Готовый бизнес. Частный хостел на 500 мест. Метро "Кировский завод" в пешей доступности. Уникальный имущественный комплекс, расположенный в Кировском районе Санкт-Петербурга.


В него входят 4х этажное здание и земельный участок со всей необходимой инфраструктурой.


Объект имеет следующие характеристики:


ЗДАНИЕ:



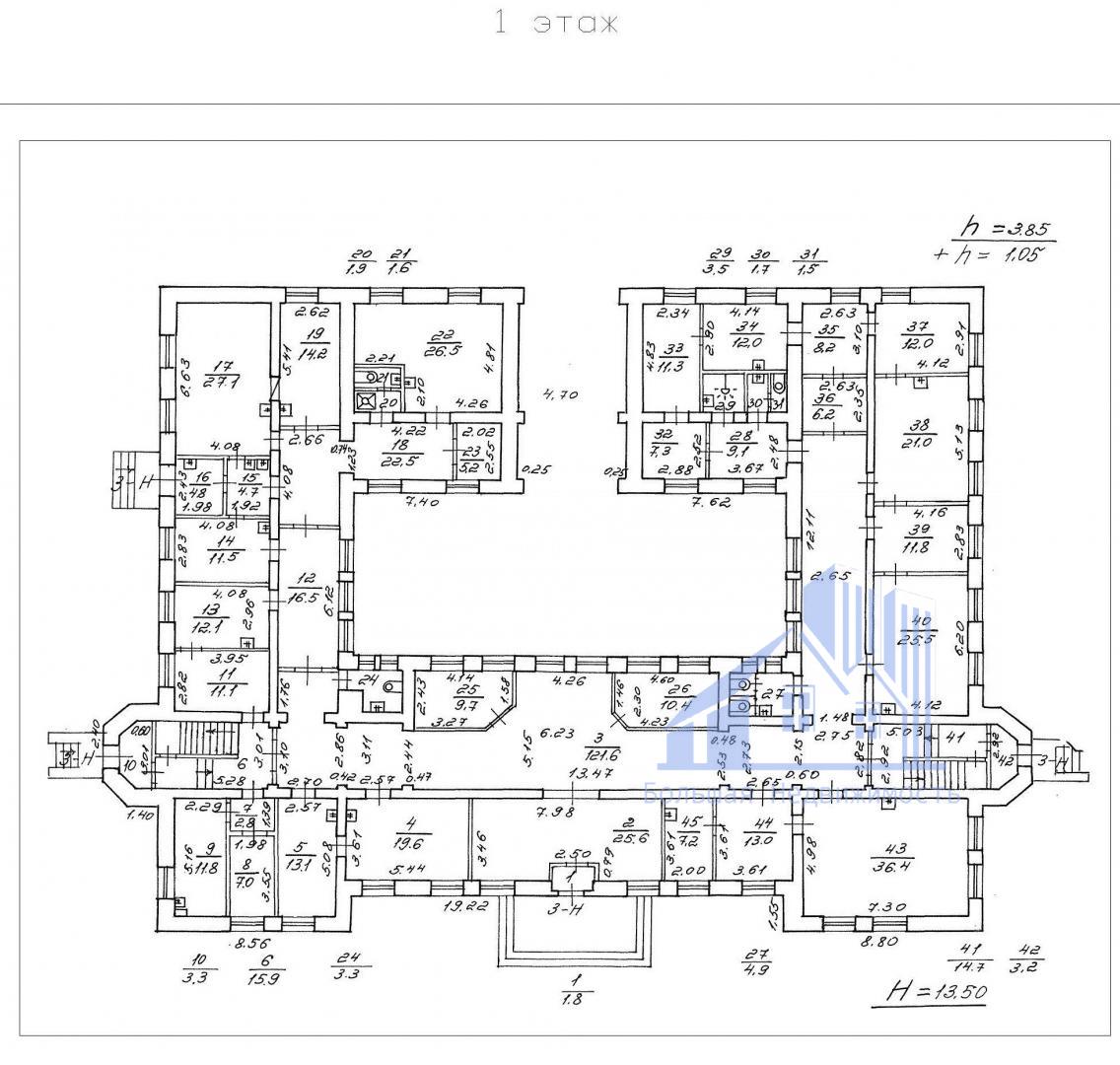
  • Общая площадь: 2442 кв.м.;

  • Год постройки: 1957,

  • Количество этажей: 4 (том числе 1 подземный),

  • Высота потолков: 3,85 м.

  • Толщина стен до 1 м.,

  • Железобетонные перекрытия.

  • Ремонт: качественный капитальный,

  • Имеется сухое и просторное чердачное помещение.


Ограничения на использование: отсутствуют,


Охраняемая автостоянка,


Установлены система видеонаблюдения и пожарная сигнализация.


Все возможные коммуникации в наличии, придомовая территория в собственности,


Есть дворик для отдыха и прогулок.


ЗЕМЕЛЬНЫЙ УЧАСТОК



  • Площадь: 1321 +/- 13 кв.м.,

  • Категория земель: земли населённых пунктов,

  • Виды использования: для размещения промышленных объектов.

  • Участок значительно больше, чем стоящее на нём здание.


В непосредственной близости расположены ПАО "Северные Верфи", Завод "Универсалмаш" АО "Кировский завод", Петербургская Металлургическая компания.


В настоящее время в здании находится частный хостел на 500 мест. В хостеле размещаются на длительный срок проживания сотрудники компаний, работающих в Порту и на близлежащих заводах. С организациями заключены длительные контракты. Заполняемость хостела 93% Район имеет развитую инфраструктуру.


Часть первого этажа занимает социальное медицинское учреждение.


В пешеходной доступности станция метро "Кировский завод" объекты социальной инфраструктуры и общепита.



Уникальность предложения состоит в том, что объект можно рассматривать и как готовый бизнес с хорошей окупаемостью, и как отлично расположенное здание для размещения производства, конструкторского бюро, медицинского учреждения, офиса компании, бизнес-центра и т.д.



Место супер проходное и проездное.



У объекта один собственник, что обеспечивает простое, быстрое и безопасное оформление сделки под контролем банка.



Звоните в любой день с 10 до 21. Предоставлю по запросу весь пакет документов, организую просмотр в удобное для Вас время.

Подробнее

Характеристики

Задать вопрос


Вас также может заинтересовать:
5
Помещение 577,5 кв.м с АРЕНДАТОРОМ
Санкт-Петербург, набережная Реки Каменки, д.15, к.2 стр 1
Приморский
173 250 000
  • Вид объекта:Торговое помещение
  • Этаж:1
  • Этажность дома:25
8
Готовый арендный бизнес
Санкт-Петербург, улица Большая Пороховская, д.47
Красногвардейский
160 000 000
  • Вид объекта:Торговое помещение
  • Этаж:1
  • Этажность дома:3
3
Магазин 605 кв.м на собственном участке
Санкт-Петербург, проспект Ленина, д.39

159 000 000
  • Вид объекта:Здание
  • Этажность дома:1

Мы используем файлы cookie, чтобы обеспечить вам наилучший доступ к нашему веб-сайту

Скопировано